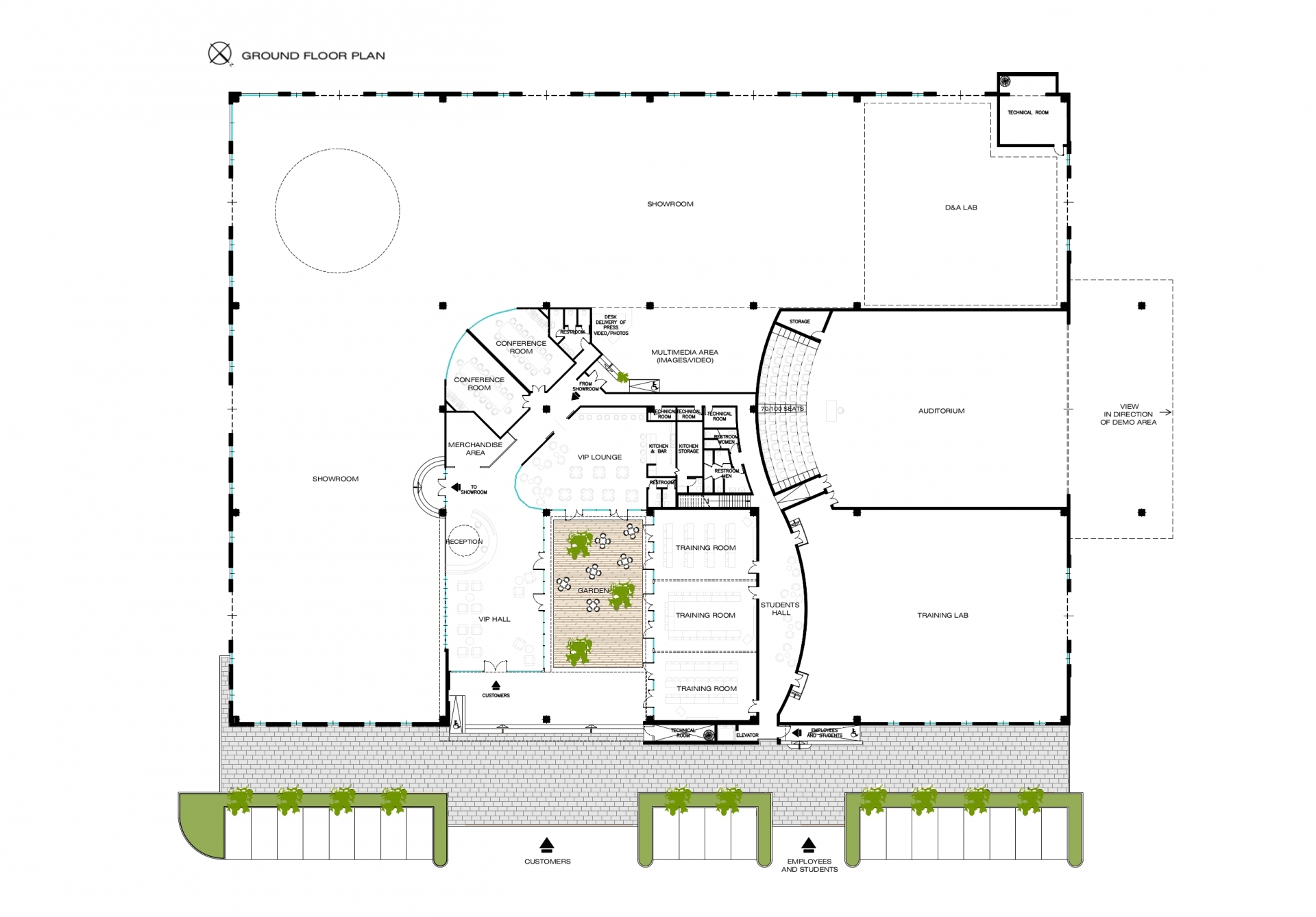
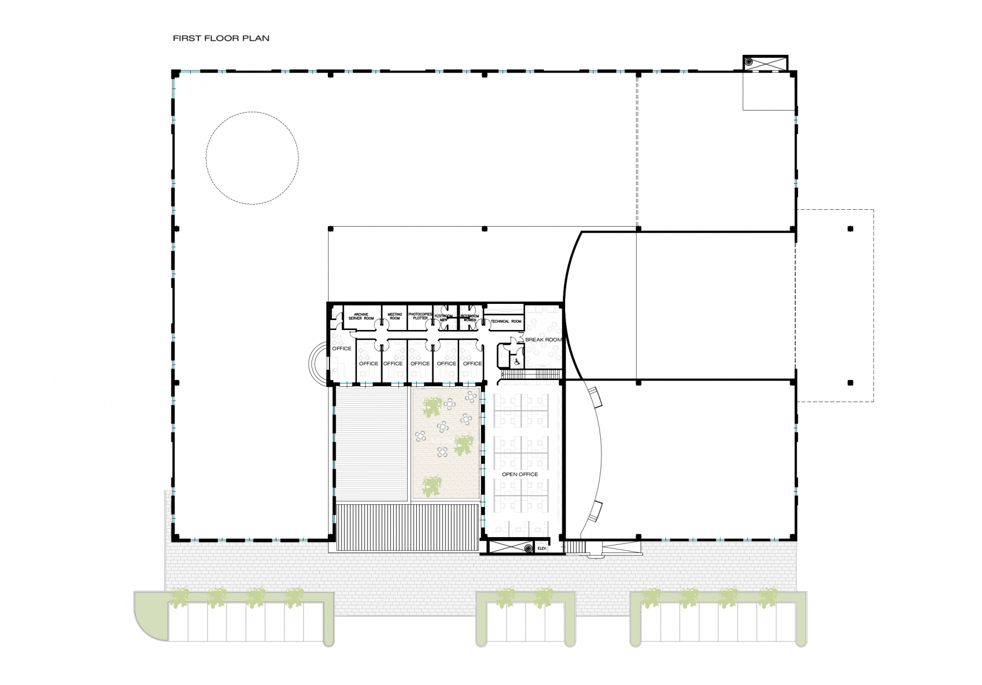
Non ancora realizzato, il progetto è stato commissionato per il sito produttivo di Minerbio (BO) in corso di ampliamento, e prevede la costruzione di un fabbricato di circa 6.000mq. di superficie utile, a destinazione mista: uffici, spazi espositivi e di rappresentanza riservati ai clienti Europei, spazi per la formazione.
L’edificio a pianta rettangolare comprende spazi espositivi per 2700 mq. di superficie, un auditorium, un’ ampia officina ed aule per le attività di formazione, uffici, spazi di rappresentanza, ristorante e giardino interno.
Nell’area esterna di 40.000 mq. sono previste ampie aree verdi, parcheggi per circa 350 auto, l’area per la prova delle macchine Caterpillar.










