Il "concept" del nuovo Visitor's center CATERPILLAR per la sede di Minerbio, anticipa in modo dettagliato quelli che saranno i connotati della nuova struttura di rappresentanza di cui questa prestigiosa azienda intende dotarsi a breve.
A tale scopo si è prevista la riconversione parziale di uno dei fabbricati esistenti all'interno dello stabilimento.
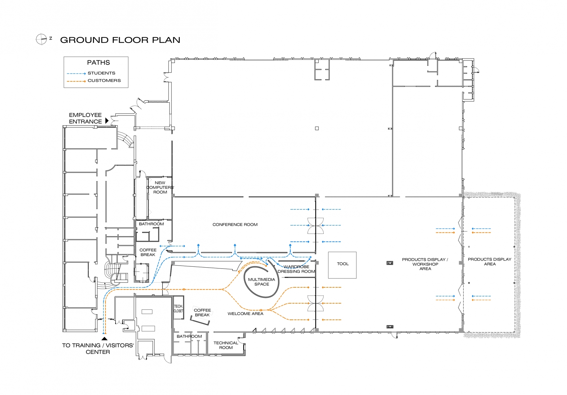
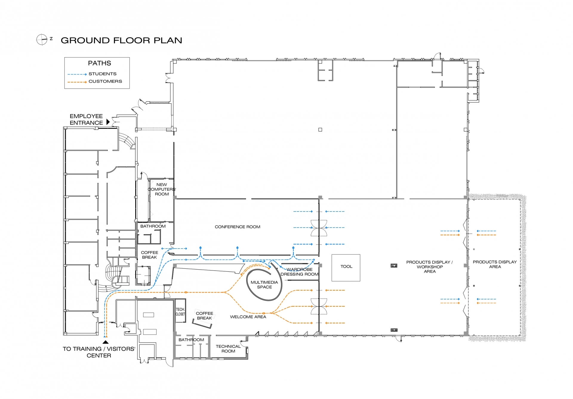
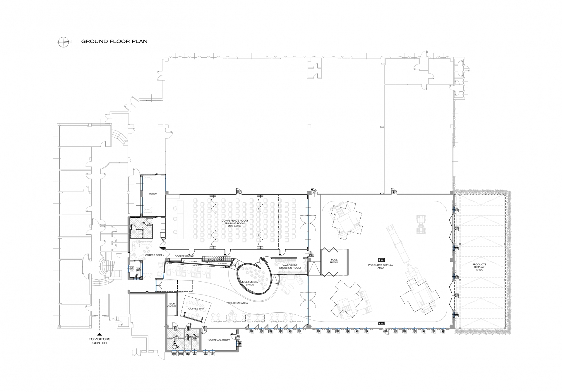
All'interno della nuova struttura saranno realizzati spazi "welcome", spazi "display" delle macchine e una capiente conference room frazionabile all'occorrenza in 3 aule training mediante pareti compattabili. Lo stesso spazio display è studiato per essere laboratorio di training quando non utilizzato come spazio espositivo.
A fungere da "cerniera" tra le 3 funzioni principali, welcome, product display e training room, è uno spazio ellittico destinato ad esperienze multimediali complementari sia alla funzione training che alle presentazioni dei prodotti.
Il lay-out è stato pensato per rendere la nuova struttura usufruibile contemporaneamente sia dai visitatori che dagli studenti del training, mediante una distribuzione interna, che pur restando semplice nel proprio schema, non sovrappone i flussi e riserva ad entrambi dotazioni di servizio separate.









