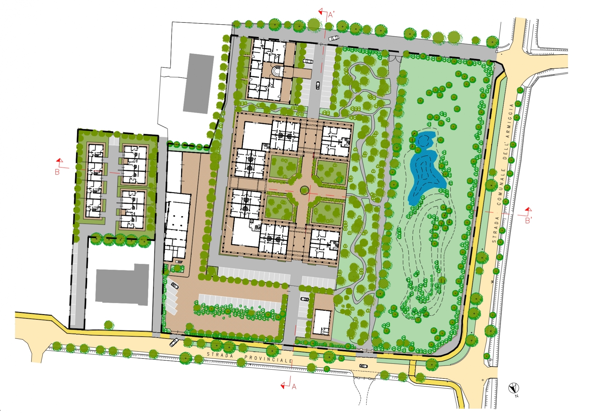
Il piano di recupero dell'area su cui sorge la prima fabbrica della ditta BITELLI, famosa per la produzione di macchine stradali tra cui i famosi rulli Bitelli, interessa un comparto urbanistico che misura poco più di 17.000mq. all'interno del quale oltre ai fabbricati che furono destinati alla sede della ditta Bitelli e alla sua attività, esiste un edificio storico su due piani per circa 1000 mq. di superficie, che fu la stalla del vicino Palazzo Odorici, una delle famose "ville di Bagnarola" oggetto di salvaguardia.
All'interno del comparto vi è un'area già attrezzata a verde e tutelata dal piano di conservazione dei beni storici di Bagnarola in quanto fu a suo tempo parte del parco di Palazzo Odorici; all'epoca era attraversata longitudinalmente dal viale alberato di accesso al palazzo percorso da coloro che provenivano da quella che è oggi Via Bagnarola; ancora oggi è possibile traguardare da Via Bagnarola il Palazzo, attraverso i due cancelli originali che si contrappongono alle due estremità del giardino.
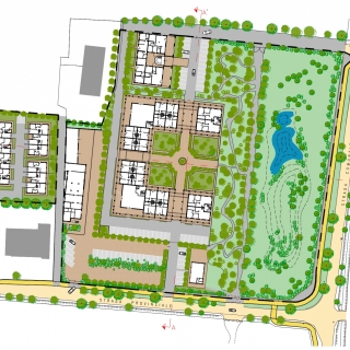
Il PDR prevede la demolizione di tutti gli edifici ex produttivi ed il successivo recupero della volumetria demolita assegnando al comparto una SU ammissibile di mq. 4450.
Il progetto ha frazionato il comparto in 4 lotti ma questo frazionamento è solo ideale ed è funzionale ad un recupero ordinato e rispettoso delle preesistenze.
Sono infatti prestabiliti gli ambiti della riedificazione che avverrà nel rispetto dei corridoi visivi, delle volumetrie e delle geometrie di ciò che è preesistente. Dalla volontà di mettere in relazione il "nuovo" con il "vecchio" e mantenere stretto il rapporto tra gli edifici ed il verde, è nata l'ispirazione per un edificio a corte, con tetti a padiglione, giardino all'italiana, proporzioni che ricordano il passato e dotato di passaggi porticati che rendono il piano terra visivamente "permeabile" in modo da non precludere di rimanere visivamente connessi con il contesto.
La vicinanza con il centro protesico di Vigorso ha suggerito di inserire tra gli usi insediabili nel comparto quelli attinenti alla residenza protetta, alle attività sanitarie, sociali, assistenzali, attività di istruzione superiore, formazione e ricerca. Nell'ipotesi che tali usi vengano effettivamente insediati, il progetto prevede la costruzione di alcuni alloggi a schiera come foresteria o residenza, nella porzione di comparto più defilata, che è di fatto un lotto funzionalmente autonomo anche dal punto di vista dell'accessibilità della pubblica viabilità.



