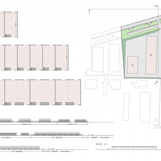
Il Piano Particolareggiato di Iniziativa Privata ha riguardato un'area a destinazione produttiva di circa 5 Ha di superficie territoriale per conto del gruppo MOROTTI HOLDING SPA, specializzato in recupero e commercializzazione di rottame ferroso.
Alla realizzazione dell'area così come a quella dei comparti adiacenti, il PRG comunale aveva legato l'attuazione di una importante bretella stradale di collegamento tra la S.S. 64 e la SP 65 -San Donato, a servizio del comparto industriale di Ca' de' Fabbri. Ogni comparto di nuova urbanizzazione avrebbe dovuto realizzare e cedere il tratto di "sua" competenza. Dalla superficie territoriale iniziale, il progetto ha quindi stralciato una striscia di 40 metri di larghezza sufficienti a realizzare l'arteria di traffico prevista dal PRG, larga 15 metri, e parallelamente ad essa sulla restante parte di 25 metri di larghezza, le aree destinate al verde pubblico e ai parcheggi pubblici derivanti dalla sua urbanizzazione. In attesa della realizzazione della nuova arteria stradale il PPIP ha previsto una strada di accesso provvisorio dalla viabilità comunale esistente che è stata realizzata e ancora oggi serve il comparto in attesa che le previsioni di PRG vengano attuate.
La superficie fondiaria edificabile, è stata trattata come un unico lotto destinato alla costruzione degli edifici della Morotti H.Spa.


