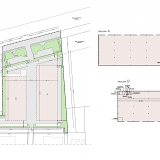
Il Piano particolareggiato di iniziativa privata ha riguardato un'area a destinazione produttiva di circa 2,5 Ha. Alla realizzazione dell'area così come a quella dei comparti adiacenti, il PRG comunale aveva legato l'attuazione di una importante bretella stradale di collegamento tra la S.S. 64 e la SP 65 -San Donato, a servizio del comparto industriale di Ca' de' Fabbri. Ogni comparto di nuova urbanizzazione avrebbe dovuto realizzare e cedere il tratto di "sua" competenza. Dalla superficie territoriale iniziale, il progetto ha quindi stralciato una striscia di 40 metri di larghezza sufficienti a realizzare l'arteria di traffico prevista dal PRG, larga 15 metri, e parallelamente ad essa sulla restante parte di 25 metri di larghezza, le aree destinate al verde pubblico e ai parcheggi pubblici derivanti dalla urbanizzazione.
Le aree edificabili sono poi state suddivise in due lotti su cui il nostro studio ha curato la costruzione di due fabbricati produttivi paralleli tra loro, per complessivi 8000mq.circa di superficie utile.

